Skip til hoved indholdet

Velkommen til Tjur/Tejstgården

Tjur- og Tejstgården i Hundige er en rækkehusbebyggelse i 2 plan i muret betonbyggeri. Bebyggelsen er opført i 1976-1977 og facaderenoveret i 2017/2019. Der findes 448 familieboliger og 22 ungdomsboliger i bebyggelsen. Hovedparten af boligerne er opført i to plan og har mindre sydvendt have med flisebelagt terrasse samt altan på 1. sal. Tjur- og Tejstgården har en meget central beliggenhed tæt på Hundige station, storcenter, folkeskole og stranden. Der findes to store legepladser samt et antal mindre legepladser i nærmiljøet. Der er stisystemer gennem hele bebyggelsen. Bebyggelsen er derfor særdeles velegnede for børnefamilier. Navnet Tjur- og Tejst er opkaldt efter hønsefuglen "Tjuren" og alkefuglen "Tejsten", som tidligere levede i området. Fire boligblokke er opdelt med 2 værelses lejligheder på 2 etager. 1. sals lejlighederne har altangang til boligen og egen altan på sydsiden. Stuelejlighederne har direkte adgang til boligen og har mindre sydvendt have. Stuelejlighederne udlejes fortrinsvis til ældre- og handicappede. Ungdomsboligerne er opført i 1989 og 1992. Den ene bygning med 6 to-rumsboliger er opført i 1 plan, mens de 16 et-rumsboliger er opført i 2 etager med 8 boliger på hver. Til hver af de 22 ungdomsboliger forefindes der køkkenfaciliteter, bad samt skur.

Afdelingsinfo

El, vand og varme
Se mere

Vand (fra 2020) og varme betales aconto over lejen og afregnes individuelt efter årligt forbrug. Afregningen fra tidligere års forbrug udsendes i foråret, hvor nyt aconto samtidigt fastsættes. Ved nyindflytning er acontoforbruget sat efter tidligere lejers forbrug. El afregnes direkte til leverandør og lejer er derfor selv ansvarlig for overholdelse af frister m.m.

Fælleshus
Se mere

Afdelingen har 2 beboerhuse og 2 gæsterum ved ejendomskontoret. Reservation af beboerhuse og gæsterum sker på ejenendomskontoret.

Husdyrhold
Se mere

I afdelingen et det tilladt at have op til to husdyr. Det er dog ikke tilladt at holde muskelhunde/kamphunde jf. særlig specifikation.

Parkering
Se mere

De forefindes flere parkeringsarealer og i tilknytning hertil er det også muligt at leje carporte.

Tv og internet
Se mere

Boligerne er tilsluttet kabelnet fra YouSee og fibernet fra Fibia. Ved indflytning er boligen tilmeldt tv-grundpakken fra YouSee, som eventuelt kan opsiges ved kontakt til Greve Boligselskabs administration. Hvis man ønsker andre tv-pakker fra Fibia eller YouSee skal man kontakte selskaberne direkte.

Vaskeri
Se mere

Der forefindes ikke vaskeri i bebyggelsen men der er installeret vaskemaskiner i alle boliger med undtagelse af ungdomsboligerne, som har et særskilt gratis fælles vaskerum.

Boliger i afdelingen

Ungdomsbolig

1 rum

Ungdomsbolig
Almindelig bolig

2 rum

Almindelig bolig
Ungdomsbolig

2 rum

Ungdomsbolig
Ældre- og handicapvenlig bolig

2 rum

Ældre- og handicapvenlig bolig
Almindelig bolig

3 rum

Almindelig bolig
Almindelig bolig

4 rum

Almindelig bolig
Almindelig bolig

5 rum

Almindelig bolig

Boligtype

Værelser

Størrelse

Husleje

Indskud/dp

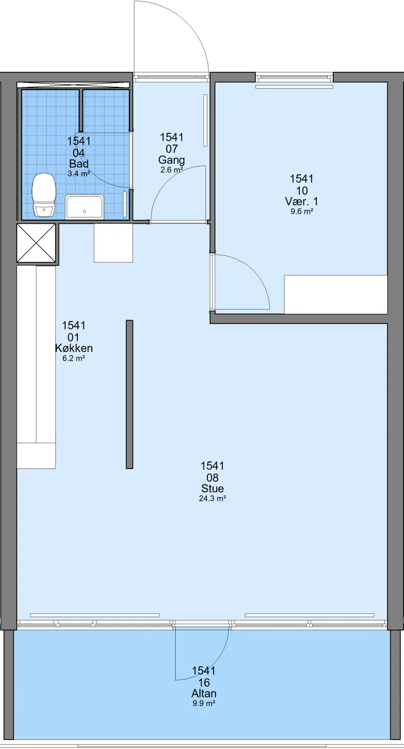
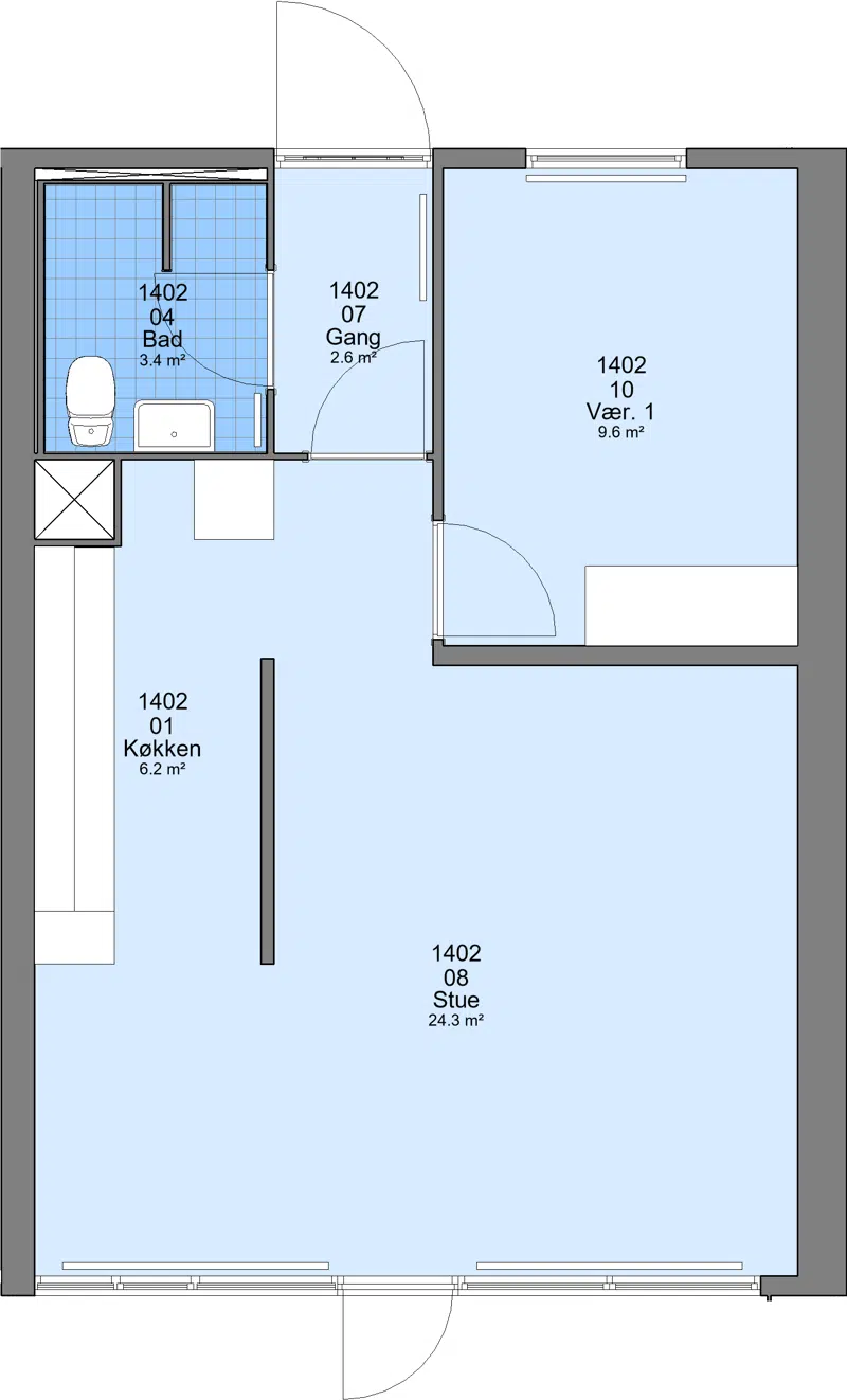
Plantegning

Ungdomsbolig

1

26.15 m²

2214 kr.

8000 kr.

Ungdomsbolig

2

33.83 m²

2927 kr.

8000 kr.

Ungdomsbolig

2

37.93 m²

3191 kr.

10000 kr.

Almindelig bolig

2

54.54 m²

3959 kr.

15000 kr.

Almindelig bolig

2

61.54 m²

4466 kr.

15000 kr.

Ældre- og handicapvenlig bolig

2

54.54 m²

3959 kr.

15000 kr.

Almindelig bolig

2

61.54 m²

4466 kr.

15000 kr.

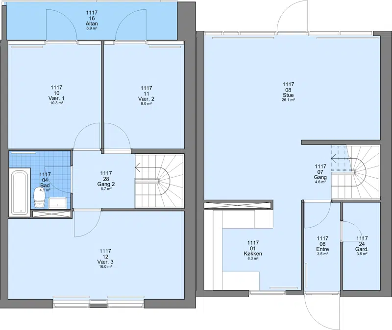
Almindelig bolig

3

80.54 m²

5843 kr.

20000 kr.

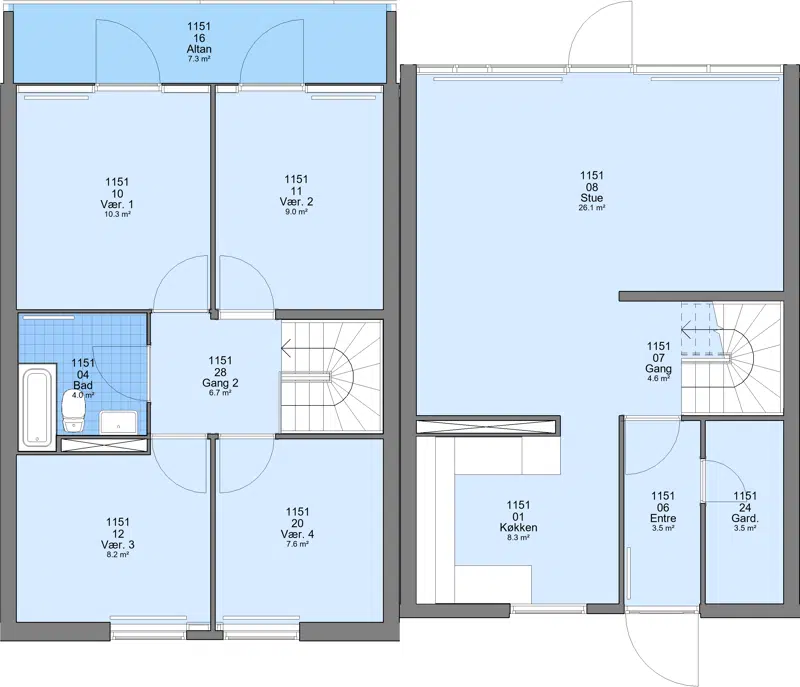
Almindelig bolig

4

103.74 m²

7526 kr.

24000 kr.

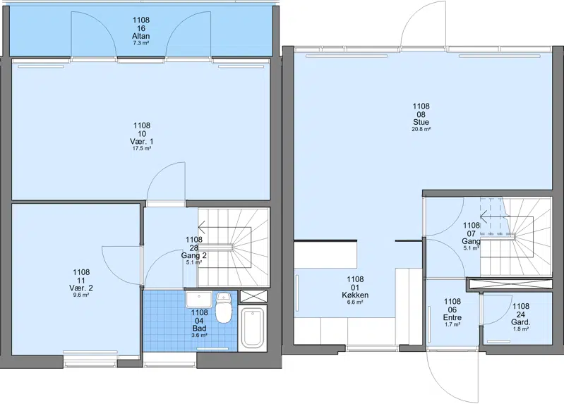
Almindelig bolig

4

89.34 m²

6483 kr.

20000 kr.

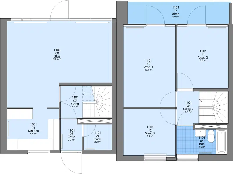
Almindelig bolig

5

103.74 m²

7526 kr.

24000 kr.

Afdelings dokumenter og filer

Referat nr. 270.pdf Referat nr. 266 af 8. november 2018.pdf Referat nr. 265 af 4.september 2018.pdf Referat nr. 264 af 4.september 2018.pdf Referat nr. 263 13. juni 2018.pdf Referat nr. 262 9. maj 2018.pdf Referat nr. 261 19. april 2018.pdf Referat nr. 260 8 marts 2018.pdf Referat nr. 258 11 januar 2018.pdf Referat nr. 257 14 december 2017.pdf Referat nr. 256 9 november 2017.pdf Referat nr. 255 12 oktober 2017.pdf Referat nr. 254 13 september 2017.pdf Referat nr. 253 6 juni 2017.pdf Referat nr. 252 9 maj 2017.pdf Referat nr. 251 20 april 2017.pdf Referat nr. 250 9 marts 2017.pdf Referat nr. 249 9 februar 2017.pdf Referat nr. 248_1 31 januar 2017.pdf Referat nr. 248 12 januar 2017.pdf Referat nr. 247 14 december 2016.pdf Referat nr. 246 10 november 2016.pdf referat nr 297.pdf Referat nr 286.pdf Referat nr 269.pdf Referat nr 245 13 oktober 2016.pdf Referat nr 244 30 august 2016.pdf Referat nr 243 8 juni 2016.pdf Referat nr 242 11 maj 2016.pdf Referat nr 241 14 april 2016.pdf Referat nr 240 17 marts 2016.pdf Referat nr 239 11 februar 2016.pdf Referat nr 239 _1 17 februar 2016.pdf Referat nr 238 13 januar 2016.pdf Referat nr 237 9 december 2015.pdf Referat nr 236 12 november 2015.pdf Referat af informationsmøde den 9 marts 2016.pdf Referat 309.pdf Referat 308.pdf Referat 307.pdf Referat 305.pdf referat 302.pdf referat 298.pdf Referat 295.pdf Referat 294.pdf Referat 293_.pdf Referat 292.pdf Referat 291.pdf referat 289_.pdf referat 288.pdf Referat 287.pdf Referat 285_.pdf Referat 284.pdf Referat 283.pdf Referat 282.pdf Referat 281.pdf referat 280_.pdf referat 279.pdf Referat 278.pdf Referat 277.pdf Referat 276.pdf Referat 275.pdf Referat 274.pdf Referat 273.pdf Referat 272.pdf Referat 271.pdf Referat 268 den 23. januar 2019.pdf Referat 267 dec. 2018.pdf marts 301.pdf Bestyrelsesmøde 10-2-11.pdf april 302.pdf 2012-14-06.pdf 2011-04-07 REF.pdf 2011-03-10 ref.pdf 2011-02-19 ref.pdf 2010-12-09 REF.pdf 11-2018-ref-budgetmøde.pdf 11-2018 budgetmøde referat med bilag.pdf 11-2017 budgetmøde referat.pdf 11-2016 budgetmøde referat.pdf 11-2015 budgetmøde referat.pdf 11-2014 budgetmøde referat.pdf 11-2013 budgetmøde referat.pdf 11-2012 budgetmøde referat.pdf 11-2011 budgetmøde referat.pdf 11-2010 budgetmøde referat.pdf 11-2009 budgetmøde referat.pdf 11-2008 budgetmøde referat.pdf 11-2007 budgetmøde referat.pdf 11-2006 budgetmøde referat.pdf 11-2005 budgetmøde referat.pdf 11-2003 budgetmøde referat.pdf 11-2002 budgetmøde referat.pdf 11-2001 budgetmøde referat.pdf 11-2001 budetmøde referat.pdf 11-2000 budgetmøde referat.pdf

referat 2023 med underskrifter.pdf ref_11.pdf 2025-ref-11.pdf 2024-ref-11.pdf 2023-ref-11.pdf 2022-ref-11.pdf 2021-ref-11.pdf 2017-01-25 referat med bilag.pdf 2015-ref-11.pdf 2014-ref-11.pdf 11_ref_13.pdf 11-ref-2016-ekstra.pdf 11-2021 beboermøde referat.pdf 11-2019 referat affald.pdf 11-2019 beboermøde referat med underskrifter.pdf 11-2019 beboermøde referat med bilag.pdf 11-2018ref.pdf 11-2018 midtvejsmøde referat med bilag.pdf 11-2017-renov.pdf 11-2017 referat.pdf 11-2017 info om mødet den 25. januar 2017.pdf 11-2017 beboermøde referat med underskrift.pdf 11-2017 beboermøde referat ekstraordinært 25. januar 2017 renovering.pdf 11-2016 renoveringsprojekt 17.05.16.pdf 11-2016 referat.pdf 11-2016 referat med underskrift.pdf 11-2016 beboermøde referat.pdf 11-2016 beboermøde referat ekstraordinært 17. maj 2016 renovering.pdf 11-2015 referat med underskrift.pdf 11-2015 beboermøde referat.pdf 11-2014 bboermøde referat.pdf 11-2013 beboermøde referat.pdf 11-2012 beboermøde referat.pdf 11-2012 beboermøde referat vedr. skift af netudbyder.pdf 11-2011 beboermøde referat.pdf 11-2010 beboermøde referat.pdf 11-2009 beboermøde referat.pdf 11-2008 beboermøde referat.pdf 11-2007 beboermøde referat.pdf 11-2007 beboermøde referat ekstraordinært 21.03.2007.pdf 11-2006 beboermøde referat.pdf 11-2005 beboermøde referat.pdf 11-2004 beboermøde referat.pdf 11-2003 beboermøde referat.pdf 11-2001 beboermøde referat.pdf 11-2001 beboermøde referat 19. april 2001.pdf 11-2000 beboermøde referat.pdf

Afdelingsbestyrelsen

Navn

Titel

Valgperiode

Svend Aage Larsen

Formand

Periode: 12.09.2024 - 30.09.2026

Camilla Faurskov-Andersen

Medlem

Periode: 12.09.2024 - 30.09.2026

Birgit Elouni

Medlem

Periode: 12.09.2025 - 30.09.2027

Susanne Hansen

Medlem

Periode: 12.09.2024 - 30.09.2026

Lizette Qvapp

Medlem

Periode: 12.09.2024 - 30.09.2026

Lasse Jensen

Medlem

Periode: 03.09.2025 - 30.09.2027

Katja Hansen

Medlem

Periode: 12.09.2024 - 30.09.2027

Ingrid Thøtt Hansen

Suppleant

Periode: 03.09.2025 - 30.09.2026

Lis Munkehøj

Suppleant

Periode: 03.09.2025 - 30.09.2026

Ejendomskontor

Kontakt dit ejendomskontor

Placering

Bliv ansøger

Find os her

Greveager 1
2670 Greve

CVR: 47345618

Åbningstider
Mandag til fredag 10:00 - 13:00

Telefon: 43 600 700
Mail: GB@greve-bolig.dk

Genveje