---
title: "Tjørnelyparken"
description: "30-3"
date: "2026-05-18"
created: "2025-12-08"
---

-
-
-
-
-
-
-

https://maps.google.dk/?q=55.6030425,12.3095348

# Tjørnelyparken

Afdeling 3

## Velkommen til Tjørnelyparken

Tjørnelyparken i Greve Nord består af 72 gårdhavehuse fra 1970. Bebyggelsen er udformet som en koncentreret haveby med små privathaver og betydelige muligheder for udendørs udfoldelse uden for de egentlige haver ved f.eks. småbørnslegepladser mellem husene, boldbaner mm. Der findes udhus til hver bolig.
Afregningen fra tidligere års forbrug udsendes i foråret, hvor nyt aconto samtidigt fastsættes. El afregnes direkte til leverandør og lejer er derfor selv ansvarlig for overholdelse af frister m.m.

## Afdelingsinfo

El, vand og varme

Se mere

Opvarmet med fjernvarme fra Greve Fjernvarme. Vand er inkluderet i huslejen. El afregnes direkte med leverandør.

Beboerhus

Se mere

Nej, men mulighed for at leje Hegnsgården afd. 17 beboerhus.

Husdyrhold

Se mere

Tilladt at have 2 husdyr. Det er dog ikke tilladt at holde muskelhunde/kamphunde jf. særlig specifikation.

Parkering

Se mere

P-pladserne er lagt som centrale p-pladser med den største midt i bebyggelsen.

Tv og internet

Se mere

Ja, grundpakke fra YouSee, som kan opsiges. Andre produkter kan aftales via YouSee.

Vaskeri

Se mere

Ja, fællesvaskeri med 2 vaskemaskiner og tørretumbler. Mulighed for installation af egen vaskemaskine.

## Boliger i afdelingen

Almindelig bolig

2 rum

Almindelig bolig

Almindelig bolig

4 rum

Almindelig bolig

Almindelig bolig

5 rum

Almindelig bolig

Boligtype

Værelser

Størrelse

Husleje

Indskud/dp

Plantegning

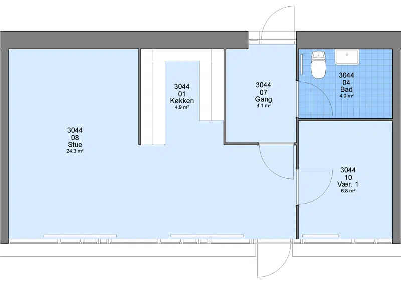
Almindelig bolig

2

47 m²

4760 kr.

12000 kr.

![](https://greve-bolig.dk/i/MOLIRIMEDIA/bce822bc-4fc8-4137-a9ef-08de32f7deb9?width=800)

Almindelig bolig

4

93 m²

7234 kr.

18000 kr.

![](https://greve-bolig.dk/i/MOLIRIMEDIA/37d8de38-f096-44b9-a4f2-08de32f7deb9?width=800)

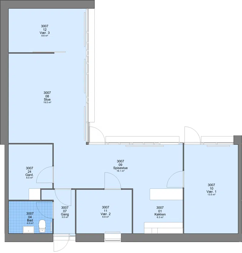
Almindelig bolig

4

93 m²

7234 kr.

18000 kr.

![](https://greve-bolig.dk/i/MOLIRIMEDIA/f29b9be8-cdf0-4a2b-ad8d-08de32f7deb9?width=800)

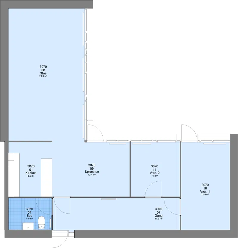
Almindelig bolig

5

108 m²

8014 kr.

18000 kr.

![](https://greve-bolig.dk/i/MOLIRIMEDIA/f2b14ee2-3e36-4d6b-acbb-08de32f7deb9?width=800)

            https://greve-bolig.dk/praktisk-info-til-nye-beboere-i-tjoernelyparken

            https://greve-bolig.dk/husorden-afd-3-tjoernelyparken

            https://greve-bolig.dk/vedligeholdelsesreglement-afd-3-tjoernelyparken

            https://greve-bolig.dk/raaderet-i-tjoernelyparken

            https://greve-bolig.dk/udlejning-af-beboerhuset-i-hegnsgaarden

            https://greve-bolig.dk/udlejning-af-gaestehus-i-hegnsgaarden

## Søger du efter referater?

[Klik her for at se referater og andre afdelingsdokumenter via MinSide.](https://minside.greve-bolig.dk/min-afdeling/afdelingsdokumenter "Klik her for at se referater og andre afdelingsdokumenter via MinSide.")

## Afdelingsbestyrelsen

Navn

Titel

Valgperiode

Susan Stenholt

Formand

Periode: 14.04.2026 - 13.04.2028

Kenneth Jensen

Medlem

Periode: 15.04.2025 - 30.04.2027

Marijanne Hjørdis Christensen

Medlem

Periode: 14.04.2026 - 13.04.2028

Jes Møller Jensen

Suppleant

Periode: 14.04.2026 - 13.04.2027

Kate Vodstrup

suppleant

Periode: 14.04.2026 - 13.04.2027

## Ejendomskontor

Kontakt dit ejendomskontor

[Kontakt afdelingsbestyrelsen](https://greve-bolig.dk/MOLIRIPAGE/709d4e7f-48e6-49c0-bc4a-95c4c5d4eb36)

                                [Kontakt ejendomskontor](https://greve-bolig.dk/MOLIRIPAGE/dc2158fe-5062-4ed7-9d19-9621ad4530c0)

## Placering
