---
title: "Enghusene"
description: "30-5"
date: "2026-02-27"
created: "2025-12-08"
---

-
-
-
-

https://maps.google.dk/?q=55.582747,12.2868703

# Enghusene

Afdeling 5

## Velkommen til Enghusene

Enghusene i Greve Midt består af 52 gårdhavehuse, som er opført i både 1 og 2 plan. Enghusene er en mindre del af den samlede bebyggelse "flexibo", som er opført i 1980 og alle facader er renoveret i 2010.
Det der gør bebyggelsen speciel er, at boligerne har mange indretningsmuligheder, da indervæggene er flytbare. Boligen kan derfor næste indrettes efter behag. - Se mulighederne for plantegninger på denne hjemmeside.

Alle boliger har mindre have, og der er ligeledes forhave med skur til alle boliger. De boliger som er opført i 2 plan har tillige tagterrasse.

Bebyggelsen har en meget central beliggenhed tæt på S-bane, indkøbscenter, rådhus, svømmehal, folkeskole og gymnasium.

## Afdelingsinfo

El, vand og varme

Se mere

Vand er en del af huslejen. Varme betales acconto med årlig opgørelse. El afregnes direkte til leverandør.

Beboerhus

Se mere

Ja, et beboerhus der kan lejes af alle beboere i Enghusene via ejendomskontoret.

Husdyrhold

Se mere

I afdelingen et det tilladt at have op til to husdyr. Det er dog ikke tilladt at holde muskelhunde/kamphunde jf. særlig specifikation.

Parkering

Se mere

Ja, placeret i udkanten af bebyggelsen, hvor der også er mulighed for at leje carport.

Tv og internet

Se mere

Ved indflytning er boligen tilmeldt tv-grundpakken fra YouSee, som kan opsiges. Andre TV-pakker kan tilkøbes direkte ved YouSee eller Fibia.

Vaskeri

Se mere

Ja, kun til privat brug for beboere. Mulighed for selv at installere egen vaskemaskine i boligen for egen regning.

## Boliger i afdelingen

Almindelig bolig

2 rum

Almindelig bolig

Almindelig bolig

3 rum

Almindelig bolig

Almindelig bolig

4 rum

Almindelig bolig

Almindelig bolig

5 rum

Almindelig bolig

Almindelig bolig

6 rum

Almindelig bolig

Boligtype

Værelser

Størrelse

Husleje

Indskud/dp

Plantegning

Almindelig bolig

2

59 m²

5754 kr.

15000 kr.

![](https://greve-bolig.dk/i/MOLIRIMEDIA/f404d339-a17c-4551-afa1-08de32f7deb9?width=800)

Almindelig bolig

3

85 m²

7682 kr.

18000 kr.

![](https://greve-bolig.dk/i/MOLIRIMEDIA/ecc73fcf-72a4-4eeb-aa0f-08de32f7deb9?width=800)

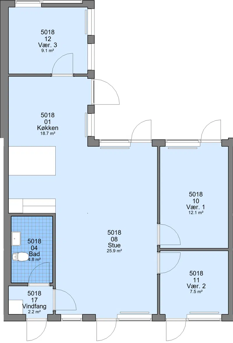
Almindelig bolig

3

78 m²

7185 kr.

18000 kr.

![](https://greve-bolig.dk/i/MOLIRIMEDIA/941be364-c304-4c19-a5a6-08de32f7deb9?width=800)

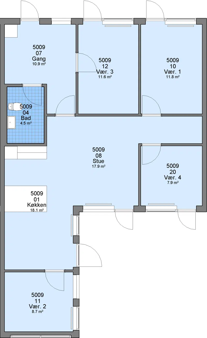
Almindelig bolig

4

98 m²

8615 kr.

20000 kr.

![](https://greve-bolig.dk/i/MOLIRIMEDIA/689ea748-e046-4b6a-a55c-08de32f7deb9?width=800)

Almindelig bolig

4

99 m²

8691 kr.

20000 kr.

![](https://greve-bolig.dk/i/MOLIRIMEDIA/b9902f22-385f-4ac9-afc3-08de32f7deb9?width=800)

Almindelig bolig

4

92 m²

8197 kr.

20000 kr.

![](https://greve-bolig.dk/i/MOLIRIMEDIA/5780468e-056d-4de1-a83d-08de32f7deb9?width=800)

Almindelig bolig

5

105 m²

9160 kr.

24000 kr.

![](https://greve-bolig.dk/i/MOLIRIMEDIA/8d73038c-acc4-416c-ace5-08de32f7deb9?width=800)

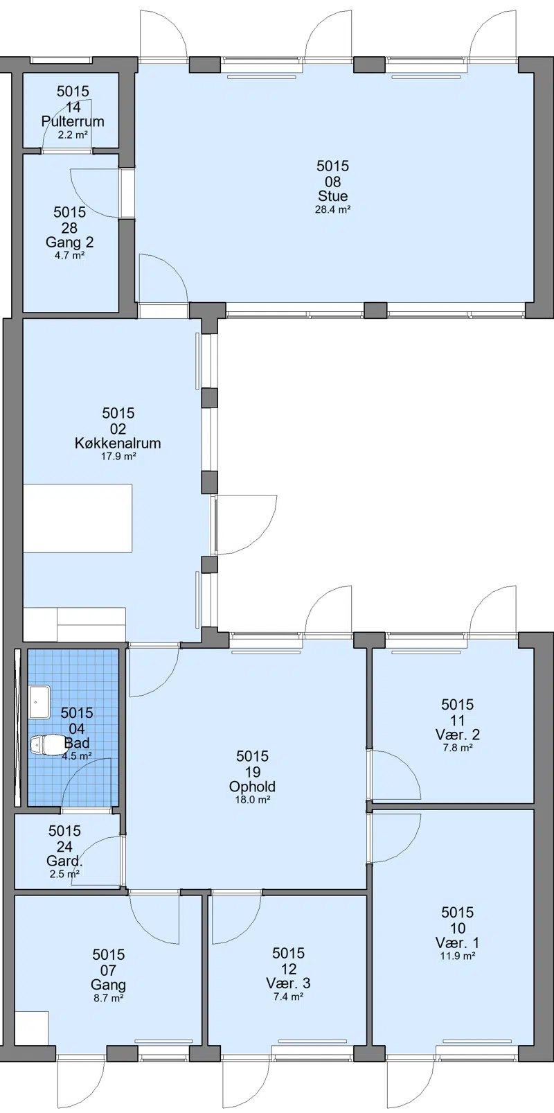
Almindelig bolig

6

130 m²

10997 kr.

24000 kr.

![](https://greve-bolig.dk/i/MOLIRIMEDIA/74ac4028-93a8-4fc4-aebc-08de32f7deb9?width=800)

            https://greve-bolig.dk/praktisk-info-til-nye-beboere-i-enghusene

            https://greve-bolig.dk/husorden-afd-5-enghusene

            https://greve-bolig.dk/vedligeholdelsesreglement-afd-5-enghusene

            https://greve-bolig.dk/raaderet-i-enghusene

            https://greve-bolig.dk/ok-el-ladestandere-til-personbiler

            https://greve-bolig.dk/udlejning-af-beboerhus-i-enghusene-2

## Søger du efter referater?

[Klik her for at se referater og andre afdelingsdokumenter via MinSide.](https://minside.greve-bolig.dk/min-afdeling/afdelingsdokumenter "Klik her for at se referater og andre afdelingsdokumenter via MinSide.")

## Afdelingsbestyrelsen

Navn

Titel

Valgperiode

Bonnie Corrie Poulsen

Formand

Periode: 22.04.2025 - 30.04.2027

Susanne Paaske

Medlem

Periode: 13.04.2026 - 12.04.2028

Rasmus Klemmensen

Medlem

Periode: 22.04.2025 - 30.04.2027

Alexandra Melchiorsen

Medlem

Periode: 13.04.2026 - 12.04.2028

John Hansen

Medlem

Periode: 22.04.2025 - 30.04.2027

Ane-Katrine Høiby

suppleant

Periode: 13.04.2026 - 12.04.2027

Ole Gravesen

suppleant

Periode: 13.04.2026 - 12.04.2027

## Ejendomskontor

Kontakt dit ejendomskontor

[Ejendomskontor Greve Midt](https://greve-bolig.dk/MOLIRIPAGE/1fda5d83-4aa4-4ac7-90e9-3c834b49ef05)

## Placering
